есть
О каталоге
Отображение 385–394 из 394Сортировка: самые недавние
-
AURORA 192
191.5 м2 4
-
VIHERVAARA 140
140 м2 3
-
LATO 143 B
143 м2 4
-
LATO 136 A
136 м2 3
-
LATO 95 B
95 м2 2
-
HARMAJA SAIMAA 137 PLUS
137.5 м2 3
-
Jukkatalo 201-11M
201 м2 3
-
Jukkatalo 84-12K-AT
117 м2 2
-
Jukkatalo 103-10K-AK
113 м2 3
-
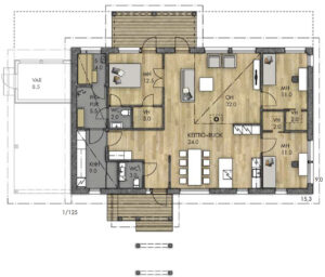
Jukkatalo 101-11M
101 м2 3




















