Marsfjäll 85

Объемно-планировочное решение #14803

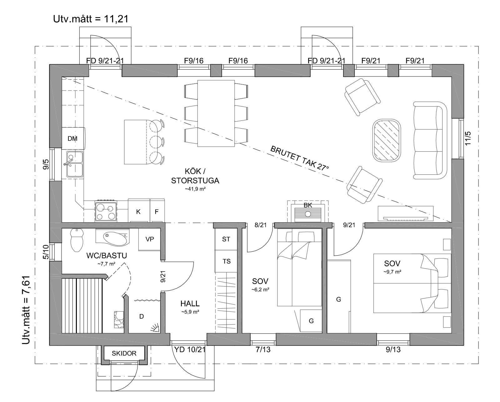
полезная площадь 75.4 м2
общая площадь 85.4 м2
1 этаж
2 спальни
1 санузел
сауна в доме
дом выходного дня

строительство по типовым и индивидуальным проектам от 47тр/м2

СТОИМОСТЬ И СМЕТА
строительства Marsfjäll 85
ИЗМЕНИТЬ И КУПИТЬ
проект Marsfjäll 85

КОМПЛЕКТАЦИЯ

Современная каркасная технология строительства

1
2
3
4
5
В основе нашей комплектации лежит идеологии и уровень качества финских компаний Kastelli, Hartman Koti, Kannustalo, Design Talo. Низкие затраты на отопление и высокий уровень комфорта жизни для вашей семьи в современном каркасном доме.

Основные особенности

  1. Возможность поэтапного строительства с невысокими затратами на этап.
  2. Надежный фундамент
  3. Наружные стены с утеплением 265 мм, кровля 300-400мм, утеплитель Umatex, эковата. Каркас из сухой строганной доски 1-2 сорта (soft angle). Межэтажные перекрытия из двутавровых I-балок или LVL (для 2-этажных домов)
  4. Стропильная система из ферм с металлозубчатыми пластинами. Утепление крыши от 300мм.
  5. Энергоэффективные  5-ти камерные окна  с 2-камерным  стеклопакетом.  Фасадная отделка «скандинавской» доской с покраской на производстве.
  6. Инженерные коммуникации включая вентиляцию с рекуперацией тепла. Предчистовая и чистовая внутренняя отделка-

дома наших заказчиков

Более 150 семей доверили нам строительство своих домов.

наши соцсети

Как построена наша работа

От идеи до реализации - всего за 6 шагов

Поделиться ссылкой на дом

Telegram
WhatsApp
VK
Прокрутить наверх