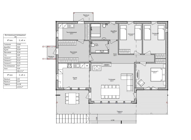
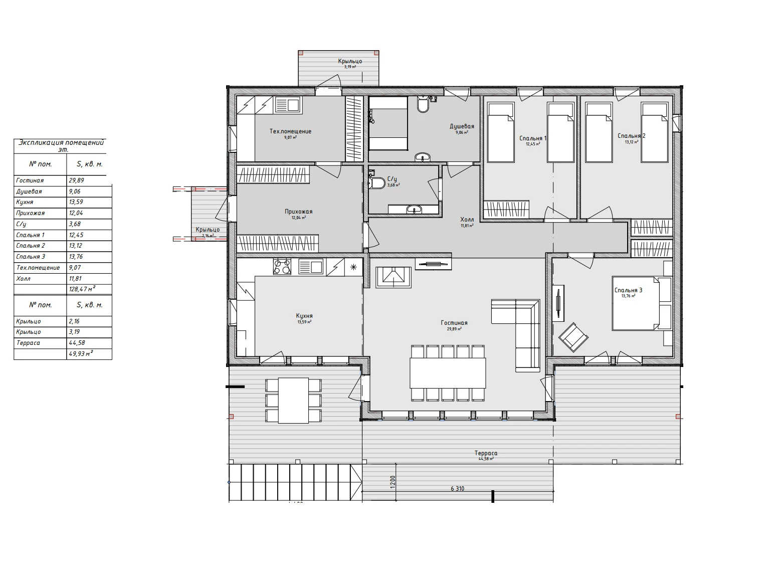
128/170
- 3спальни
- 2 санузла
- 128м2
- 15x12м
запрос стоимости
Запрос стоимости строительства Skandika 128/170
- О доме
- Планировка
- Комплектация
Skandika 128/170 — удаленная дача с прекрасным видом на берегу Волги
✔ 3 спальни: 14м2, 13м2, 13м2
✔ кухня гостиная 44м2 с высоким потолком
✔ 2 санузла
✔ терраса 35м2
✔ высота потолков 2.7м
✔ кухня гостиная 44м2 с высоким потолком
✔ 2 санузла
✔ терраса 35м2
✔ высота потолков 2.7м
✔ размеры дома 15х12м (с террасой)
✔ полезная площадь 128м2
✔ общая площадь 170м2
✔ хозяйственно-техническое помещение
✔ полезная площадь 128м2
✔ общая площадь 170м2
✔ хозяйственно-техническое помещение
Базовая комплектация Skandika с изменениями и дополнениями
✔ Фундамент винтовые сваи
✔ Водяные теплые полы в утепленной стяжке
✔ Отопление от электро котла
✔ Утепление — стены 200+50мм, кровля 400мм
✔ Утеплитель Paroc Extra
✔ Каркас и стропильная система из сухой строганной доски
✔ Стропильная система — фермы на МЗП заводского производства
✔ Водяные теплые полы в утепленной стяжке
✔ Отопление от электро котла
✔ Утепление — стены 200+50мм, кровля 400мм
✔ Утеплитель Paroc Extra
✔ Каркас и стропильная система из сухой строганной доски
✔ Стропильная система — фермы на МЗП заводского производства
✔ Кровля — Металлочерепица Rooftop Matt
✔ Окна — Skaala
✔ Ветрозащитная плита Vetonit Gyproc GTS9
✔ Деревянные фасады промышленной окраски с поднятым ворсом
✔ Входная дверь Jeld-Wen
✔ Приточно вытяжная вентиляция с рекуперацией тепла
✔ Окна — Skaala
✔ Ветрозащитная плита Vetonit Gyproc GTS9
✔ Деревянные фасады промышленной окраски с поднятым ворсом
✔ Входная дверь Jeld-Wen
✔ Приточно вытяжная вентиляция с рекуперацией тепла


