Skandika 182/220
- 4 спальни
- 2 санузла
- 180м2
- 9x16м
запрос стоимости
Запрос стоимости строительства Skandika 182/220
- О доме
- Планировка
- Комплектация
Skandika 182/220 — в основе лежит норвежский проект адаптированный под пожелания заказчика
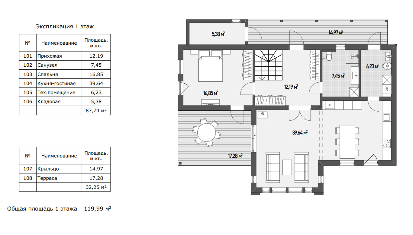
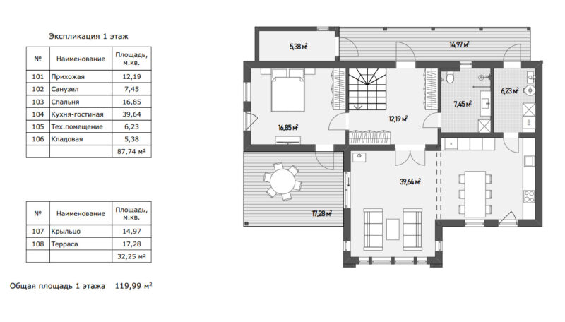
✔ 4 спальни: 16м2, 13м2, 10м2, 10м2
✔ кухня гостиная 39м2
✔ 2 санузла
✔ терраса и балкон по 18м2
✔ высота потолков 2.7м
✔ кухня гостиная 39м2
✔ 2 санузла
✔ терраса и балкон по 18м2
✔ высота потолков 2.7м
✔ размеры дома 9х16м
✔ полезная площадь 180м2
✔ общая площадь 220м2
✔ хозяйственно-техническое помещение
✔ полезная площадь 180м2
✔ общая площадь 220м2
✔ хозяйственно-техническое помещение
Базовая комплектация Skandika с изменениями и дополнениями
✔ Фундамент УШП(утепленная шведская плита)
✔ Водяные теплые полы в утепленной стяжке
✔ Отопление от электро котла
✔ Утепление — стены 200+50мм, кровля 400мм
✔ Утеплитель Paroc Extra
✔ Каркас и стропильная система из сухой строганной доски
✔ Стропильная система — фермы на МЗП заводского производства
✔ Водяные теплые полы в утепленной стяжке
✔ Отопление от электро котла
✔ Утепление — стены 200+50мм, кровля 400мм
✔ Утеплитель Paroc Extra
✔ Каркас и стропильная система из сухой строганной доски
✔ Стропильная система — фермы на МЗП заводского производства
✔ Кровля — Фальцевая кровля Rooftop Matt
✔ Окна — Veka Softline 70 , стеклопакеты X-One Energy
✔ Ветрозащитная плита Vetonit Gyproc GTS9
✔ Деревянные фасады промышленной окраски с поднятым ворсом
✔ Входная дверь Norddoor
✔ Приточно вытяжная вентиляция с рекуперацией тепла
✔ Окна — Veka Softline 70 , стеклопакеты X-One Energy
✔ Ветрозащитная плита Vetonit Gyproc GTS9
✔ Деревянные фасады промышленной окраски с поднятым ворсом
✔ Входная дверь Norddoor
✔ Приточно вытяжная вентиляция с рекуперацией тепла


