СПЕЦПРЕДЛОЖЕНИЕ
новый дом от 4 950 000₽
Скидка в 0дин миллион рублей при заказе "под ключ"
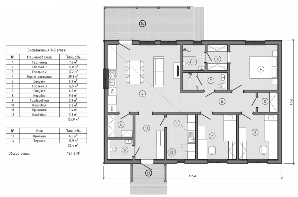
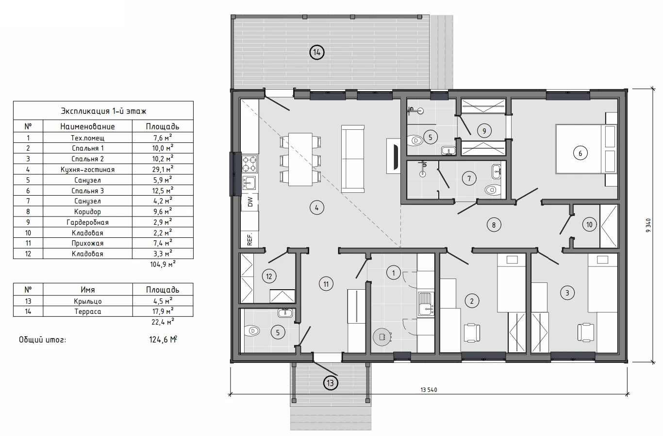
SKANDIKA 125
Наш новый серийный проект комфорт класса с 3 спальнями, в котором мы учли максимальное количество пожеланий.
- Общая площадь 125м2
- Кухня-гостиная 30м2 с высоким наклонным потолком
- 3 спальни, включая мастер спальню 12.5 м2, с личным гардеробом и санузлом
- 3 санузла
- Хозяйственно техническое помещение
- 2 дополнительные кладовые комнаты
- Префаб технология
комплектация БАЗОВАЯ:
- Фундамент из забивных свай
- Комплект панелей перекрытия с утеплением 250 и плитным настилом 22мм
- Комплект стеновых панелей с утеплением 200мм, пароизоляцией обрешеткой под фасад и доп утепление
- Комплект стропильных ферм с подкровельной мембраной и обрешетками
- Каркас террасы
- Монтаж на объекте
4 950 000 ₽
комплектация ВСЕ ВКЛЮЧЕНО:
- Фундамент из забивных свай
- Комплект панелей перекрытия по свайному полю с утеплением 250мм и пароизоляцией
- Комплект стеновых панелей с утеплением 250мм и пароизоляцией
- Комплект стропильных ферм с утеплением 300мм
- Кровельное покрытие (фальцевая кровля)
- Система снегозадержания, металлический водосток
- Полная отделка «скандинавской доской» с поднятым ворсом.
- Окна Veka Softline 70
- Террасы
- Работа по монтажу на объекте
и многое другое…
8 788 960 7 788 000₽
узнайте подробности:
СПБ +7 (812) 317-7-157 МСК +7 (495) 150-2-162
Внимание! Предложение ограничено ! В стоимость не включена доставка.
Подробности в личной переписке через наш рабочий контакт через Telegram или Whatsapp — нажмите на кнопки ниже и получите подробности
